Mieszkanie na sprzedaż Bielsko-Biała

3 pokoje
48.89 m²
10 700,00 zł/m2
parter
VTS-MS-7166
Oblicz ratę kredytu Powiadom o spadku ceny

523 123 zł

Mieszkanie na sprzedaż
Nowa oferta

Szczegóły oferty

Inwestycja Mieszkania klasy premium w sercu Bielska-Białej
Symbol oferty VTS-MS-7166
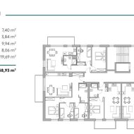
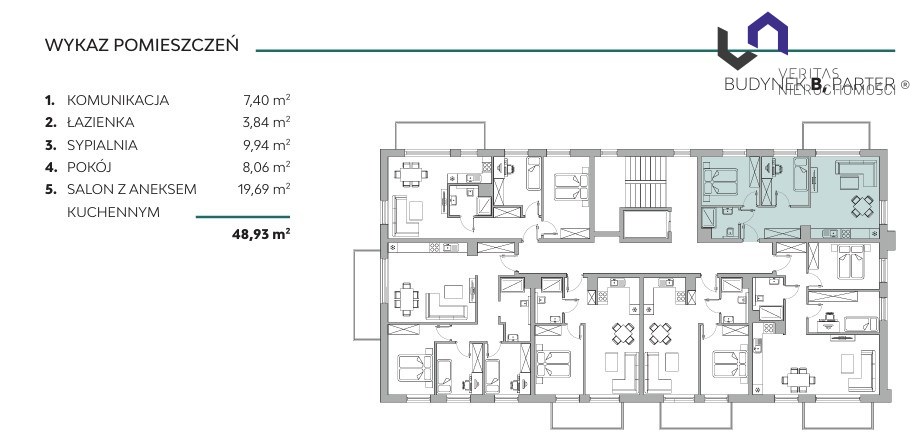
Powierzchnia 48,89 m²
Liczba pokoi 3
Rodzaj budynku apartamentowiec
Technologia budowlana pustak
Standard
Piętro parter
Liczba pięter w budynku 2
Garaż garaż
Stan lokalu do wykończenia
Instalacje nowe
Balkon jest
Liczba balkonów 1
Rok budowy 2024
Woda jest
Dojazd asfalt
Otoczenie zabudowa jednorodzinna
Winda tak
Liczba wind 1
Kinga Danisiewicz

Kinga Danisiewicz

Specjalistka ds nieruchomości

Napisz wiadomość 23 Ofert

Opis nieruchomości

Mieszkania klasy premium w sercu Bielska-Białej

Pragniemy zaprosić Cię do wyjątkowej inwestycji w Bielsku-Białej. Kameralnego osiedla położonego w jednej z najbardziej pożądanych dzielnic Bielska-Białej — Kamienica. Usytuowane u podnóża Szyndzielni, w otoczeniu zieleni i w ciszy, jednocześnie z szybkim dostępem do całej infrastruktury miejskiej.


Atuty inwestycji

  • Kameralność i komfort
    Osiedle składa się z przemyślanie zaprojektowanych budynków. Zostało ukończone, co oznacza brak oczekiwania na odbiór — można od razu rozpocząć życie w nowym lokum. 

  • Lokalizacja premium
    • Bliskość natury — Dębowiec w zasięgu spaceru (ok. 1,2 km). 
    • Przystanki komunikacji miejskiej w odległości ~150 m. 
    • Sklepy, placówki zdrowotne, szkoły, przedszkola — wszystko „na wyciągnięcie ręki”: Kaufland, Biedronka ok. 500 m, apteka 600 m, szkoła podst. 500 m, przedszkole 350 m. 
    • Dolna stacja kolejki na Szyndzielnię ~3 km — idealna opcja na relaks w górach. 

  • Wysoki standard wykończenia
    • Okna HS przesuwne z elektrycznymi roletami wewnętrznymi 
    • Ogrzewanie podłogowe 
    • Klatki schodowe wykonane z granitu i marmuru 
    • Balkony / tarasy z eleganckimi barierrami ze stali nierdzewnej i szkła 
    • Winda o podwyższonym standardzie 
    • Podziemne garaże 
    • Doprowadzenie światłowodu — komfort łączności bez kompromisów 
    • Osiedle zamknięte, zapewniające prywatność i bezpieczeństwo mieszkańców 

  • Przemyślane układy mieszkań
    Każde mieszkanie zostało zaprojektowane z myślą o maksymalnej funkcjonalności i komforcie. Każde mieszkanie posiada taras lub balkon. 


Idealne dla Ciebie

Jeśli szukasz mieszkania dla siebie lub rodziny — ceniąc połączenie ciszy, dostępu do natury i wygodnej infrastruktury. Ta inwestycja to propozycja, która spełni oczekiwania. To również świetna opcja inwestycyjna dzięki lokalizacji w prestiżowej części miasta.

 

Dodatkowo płatne:
BUDYNEK B : - miejsce postojowe w garażu podziemnym (50 000,00 zł), na parkingu zewn. (30 000,00 zł)., komórka lokatorska (10 000,00 zł)
BUDYNEK C : - miejsce postojowe  na parkingu zewn. (30 000,00 zł), komórka lokatorska (10 000,00 zł)

Nota prawna

OFERUJEMY BEZPŁATNĄ POMOC W UZYSKANIU KREDYTU HIPOTECZNEGO. UMÓW SIĘ Z NASZYM DORADCĄ JUŻ DZIŚ!

POLUB NASZ PROFIL NA FACEBOOK – CODZIENNIE NOWE OFERTY!!

UWAGA:
Prezentowana oferta nieruchomości sporządzona została na podstawie dokumentów oraz oświadczeń uzyskanych od właściciela podczas oględzin nieruchomości, ma charakter informacyjny, nie stanowi oferty handlowej w rozumieniu Art.66 par.1 Kodeksu Cywilnego.

1. USŁUGA POŚREDNICTWA JEST USŁUGĄ ODPŁATNĄ. (Art. 179b. Ustawy o Gospodarce Nieruchomościami "Pośrednictwo w obrocie nieruchomościami polega na odpłatnym wykonywaniu czynności zmierzających do zawarcia przez inne osoby umów:
1)nabycia lub zbycia praw do nieruchomości
2)nabycia lub zbycia spółdzielczego własnościowego prawa do lokalu;
3)najmu lub dzierżawy nieruchomości lub ich części;
4)innych niż określone w pkt 1–3, których przedmiotem są prawa do nieruchomości lub ich części."

2. ZA OBEJRZENIE DANEJ NIERUCHOMOŚCI BIURO NIE POBIERA ŻADNYCH OPŁAT, wymagane jednak jest zawarcie umowy pośrednictwa i określenie wynagrodzenia biura w razie dojścia do transakcji.

Kalkulatory

Kalkulator kredytowy

Wysokość raty

PLN
%

Kalkulator kosztów

Taksa notarialna
(opłata notarialna)

Wniosek o wpis do WKW

VAT od prowizji
agencji nieruchomości

Vat od taksy notarialnej
(opłaty notarialnej)

Prowizja agencji nieruchomości

Wypisy aktu notarialnego

Razem

Uwaga: mogą wystąpić dodatkowe opłaty za założenie księgi wieczystej oraz ustanowienie hipoteki.

PLN
PLN
PLN
PLN
PLN
%
PLN

Podobne oferty

Mieszkanie na sprzedaż

Bielsko-Biała

2 pokoje 40 m2 12 100,00 zł/m2

Mieszkanie na sprzedaż

Bielsko-Biała

2 pokoje 49 m2 12 100,00 zł/m2

Mieszkanie na sprzedaż

Bielsko-Biała

3 pokoje 52 m2 11 399,61 zł/m2

Mieszkanie na sprzedaż

Bielsko-Biała

4 pokoje 57 m2 10 500,00 zł/m2

Specjalistka ds nieruchomości

Proszę wprowadzić poprawne imię i nazwisko
Proszę wprowadzić poprawny numer telefonu
Proszę wprowadzić poprawny adres e-mail
Proszę zaznaczyć wymagane zgody
Rozwiąż równanie:
19 4
Niepoprawny wynik