7 pokoi
396.52 m²
1 712,40 zł/m2
VTS-DS-7187
Oblicz ratę kredytu Powiadom o spadku ceny

679 000 zł

Dom na sprzedaż
Nowa oferta

Szczegóły oferty

Symbol oferty VTS-DS-7187
Powierzchnia 396,52 m²
Powierzchnia działki [m2] 816 m²
Liczba pokoi 7
Rodzaj domu wolnostojący
Garaż w budynku
Stan budynku do remontu
Rok budowy 2002
Gaz jest
Woda jest
Dojazd asfalt
Otoczenie zabudowa jednorodzinna
Prąd jest
Kinga Danisiewicz

Kinga Danisiewicz

Specjalistka ds nieruchomości

Napisz wiadomość 25 Ofert

Opis nieruchomości

Duży dom z potencjałem – idealny dla rodziny lub inwestora | 7 pokoi | 396,52 m² | 679 000 zł

Lokalizacja: Chybie, ul. Wyzwolenia, woj. śląskie
Powierzchnia całkowita: 396,52 m²
Powierzchnia działki: 816 m²
Cena: 679 000 zł
Forma własności: pełna własność


Opis nieruchomości

Na sprzedaż duży, wolnostojący dom o imponującej powierzchni niemal 400 m², położony w centralnej części Chybia – w otoczeniu zabudowy jednorodzinnej, z wygodnym dojazdem drogą asfaltową.
To wyjątkowa oferta zarówno dla dużej rodziny, jak i inwestora, który dostrzeże potencjał nieruchomości jako:

  • domu z mieszkaniami pracowniczymi,

  • pensjonatu,

  • siedziby firmy lub biur z częścią mieszkalną,

  • lub inwestycji do podziału na kilka niezależnych lokali.

Dom został wybudowany w 2002 roku i wymaga odświeżenia lub remontu, co daje możliwość aranżacji wnętrz według własnych potrzeb.


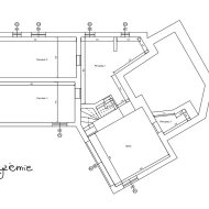
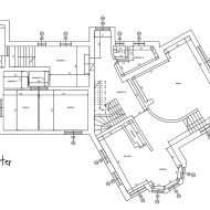
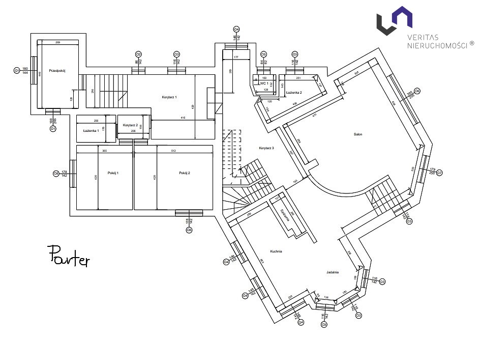
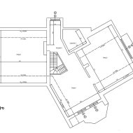
Układ pomieszczeń

Nieruchomość składa się z:

  • 7 przestronnych pokoi,

  • kuchni,

  • 2 łazienek,

  • piwnicy,

  • garażu w bryle budynku,

  • użytkowego poddasza z możliwością adaptacji na dodatkowe pokoje lub osobne mieszkanie.

Dzięki dużej powierzchni i funkcjonalnemu układowi pomieszczeń, dom sprawdzi się zarówno jako komfortowe miejsce do życia, jak i projekt inwestycyjny o wysokim potencjale zwrotu.


Dodatkowe informacje

  • Stan: do remontu

  • Rok budowy: 2002 r.

  • Działka: 816 m² (nr 186/1)

  • Dostępne media: prąd, gaz, woda, kanalizacja

  • Dojazd: bezpośredni z drogi asfaltowej


Lokalizacja

Dom położony jest w centrum Chybia, w spokojnej i dobrze skomunikowanej okolicy.
W pobliżu znajdują się:

  • sklepy, szkoła, przedszkole,

  • przystanki komunikacji publicznej,

  • tereny rekreacyjne i ścieżki rowerowe,

  • a jedynie 7,5 km dzieli nieruchomość od malowniczego Jeziora Goczałkowickiego – idealnego miejsca na weekendowy odpoczynek.


Dlaczego warto:

✅ Duża powierzchnia i funkcjonalny układ – idealny dla dużej rodziny lub kilku lokatorów
✅ Możliwość przekształcenia na dom wielorodzinny lub inwestycję pod najem
✅ Spokojna, dobrze skomunikowana okolica
✅ Atrakcyjna cena za metr – poniżej 1 800 zł/m²


Zadzwoń i umów się na prezentację!
Zobacz potencjał tej nieruchomości na żywo i zaplanuj jej nowe przeznaczenie.

Nota prawna

OFERUJEMY BEZPŁATNĄ POMOC W UZYSKANIU KREDYTU HIPOTECZNEGO. UMÓW SIĘ Z NASZYM DORADCĄ JUŻ DZIŚ!

POLUB NASZ PROFIL NA FACEBOOK – CODZIENNIE NOWE OFERTY!!

UWAGA:
Prezentowana oferta nieruchomości sporządzona została na podstawie dokumentów oraz oświadczeń uzyskanych od właściciela podczas oględzin nieruchomości, ma charakter informacyjny, nie stanowi oferty handlowej w rozumieniu Art.66 par.1 Kodeksu Cywilnego.

1. USŁUGA POŚREDNICTWA JEST USŁUGĄ ODPŁATNĄ. (Art. 179b. Ustawy o Gospodarce Nieruchomościami "Pośrednictwo w obrocie nieruchomościami polega na odpłatnym wykonywaniu czynności zmierzających do zawarcia przez inne osoby umów:
1)nabycia lub zbycia praw do nieruchomości
2)nabycia lub zbycia spółdzielczego własnościowego prawa do lokalu;
3)najmu lub dzierżawy nieruchomości lub ich części;
4)innych niż określone w pkt 1–3, których przedmiotem są prawa do nieruchomości lub ich części."

2. ZA OBEJRZENIE DANEJ NIERUCHOMOŚCI BIURO NIE POBIERA ŻADNYCH OPŁAT, wymagane jednak jest zawarcie umowy pośrednictwa i określenie wynagrodzenia biura w razie dojścia do transakcji.

Kalkulatory

Kalkulator kredytowy

Wysokość raty

PLN
%

Kalkulator kosztów

Podatek od czynności cywilno-prawnych

Taksa notarialna
(opłata notarialna)

Wniosek o wpis do WKW

VAT od prowizji
agencji nieruchomości

Vat od taksy notarialnej
(opłaty notarialnej)

Prowizja agencji nieruchomości

Wypisy aktu notarialnego

Razem

Uwaga: mogą wystąpić dodatkowe opłaty za założenie księgi wieczystej oraz ustanowienie hipoteki.

PLN
PLN
PLN
PLN
PLN
PLN
%
PLN

Specjalistka ds nieruchomości

Proszę wprowadzić poprawne imię i nazwisko
Proszę wprowadzić poprawny numer telefonu
Proszę wprowadzić poprawny adres e-mail
Proszę zaznaczyć wymagane zgody
Rozwiąż równanie:
12 8
Niepoprawny wynik