Mieszkanie na sprzedaż Katowice, Śródmieście, Zabrska

3 pokoje
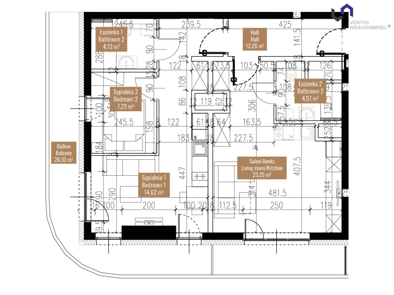
66.68 m²
12 550,00 zł/m2
7 piętro
VTS-MS-6320
Oblicz ratę kredytu Powiadom o spadku ceny

836 834 zł

Mieszkanie na sprzedaż

Szczegóły oferty

Inwestycja Global Apartments
Symbol oferty VTS-MS-6320
Powierzchnia 66,68 m²
Liczba pokoi 3
Rodzaj budynku apartamentowiec
Standard
Opłaty wg liczników CO, prąd, woda
Piętro 7
Liczba pięter w budynku 27
Garaż garaż
Stan lokalu Do adaptacji
Okna nowe PCV
Instalacje nowe
Balkon jest
Rok budowy 2023
Gaz brak
Woda ciepła - miejska
Dojazd asfalt
Ogrzewanie miejskie
Winda tak
Usytuowanie jednostronne
Pomieszczenia
Rodzaj kuchni aneks kuchenny - połączony z salonem
Typ łazienki razem z wc
Tomasz Mikołajczak

Tomasz Mikołajczak

Specjalista ds nieruchomości

Napisz wiadomość 299 Ofert

Opis nieruchomości


NOWA INWESTYCJA GLOBAL APARTAMENTS!

  • Kompleks składa się z dwóch wież biurowych i jednej wieży mieszkaniowej osadzonych na wspólnym 5-kondygnacyjnym podium, w którym znajdą się liczne lokale gastronomiczne, handlowe i usługowe. Wieże biurowe, liczące po 25 pięter i 100 m wysokości, zapewnią dostęp do wysokiej klasy powierzchni do pracy.
  • Budynek mieszkaniowy zaoferuje 663 mieszkania o zróżnicowanym metrażu. Naprzeciwko wielofunkcyjnego kompleksu stanie również klasyczny w formie, 6-kondygnacyjny budynek biurowy, liczący ponad 4 tys. m2 wysokiej klasy powierzchni do pracy, tereny zielone oraz deptak.
  • Wieża z funkcją mieszkalną w całości otrzyma prestiżowy certyfikat BREEM, który zapewnia, że projekt realizowany jest zgodnie z ideą zrównoważonego rozwoju.
  • wysokie mieszkania (270 cm)
  • Możliwość łączenia mieszkań w poziomie, na każdej kondygnacji (warunek to dostępność mieszkań obok siebie oraz zgoda dewelopera oraz dodatkowo płatne)
  • Możliwość montażu klimatyzacji w mieszkaniach z tarasami wymagana zgoda zarządcy (jednostki zamontowane na podłogach tarasów, w mieszkaniach bez balkonu zaprojektowano chłodzenie za pomocą klimakonwektorów.
  • Całodobowa ochrona
  • Wysokie okna, duże przeszklenia
  • Reprezentacyjne lobby
  • Certyfikacja w zakresie ekologiczności - Wieża z funkcją mieszkalną w całości otrzyma prestiżowy certyfikat BREEM, który zapewnia, że projekt realizowany jest zgodnie z ideą zrównoważonego rozwoju.
  • Towarzyski Hot-Spot - Global oferuje dwupoziomową galerię handlową
  • Instalacja światłowodowa, instalacja telewizji naziemnej i telewizji satelitarnej doprowadzona do teletechnicznej tablicy mieszkaniowej w każdym mieszkaniu
  • Ogrzewanie: miejskie

  • Cena brutto m. p. w garażu podziemnym: 60 000 zł

  • Liczba poziomów garażu podziemnego: -2

    Dodatkowe: winda, instalacje internetowe, instalacje tv, obowiązkowy zakup garażu, m. p. w garażu podziemnym, monitoring na terenie inwestycji, teren chroniony

Nota prawna

OFERUJEMY BEZPŁATNĄ POMOC W UZYSKANIU KREDYTU HIPOTECZNEGO. UMÓW SIĘ Z NASZYM DORADCĄ JUŻ DZIŚ!

POLUB NASZ PROFIL NA FACEBOOK – CODZIENNIE NOWE OFERTY!!

UWAGA:
Prezentowana oferta nieruchomości sporządzona została na podstawie dokumentów oraz oświadczeń uzyskanych od właściciela podczas oględzin nieruchomości, ma charakter informacyjny, nie stanowi oferty handlowej w rozumieniu Art.66 par.1 Kodeksu Cywilnego.

1. USŁUGA POŚREDNICTWA JEST USŁUGĄ ODPŁATNĄ. (Art. 179b. Ustawy o Gospodarce Nieruchomościami "Pośrednictwo w obrocie nieruchomościami polega na odpłatnym wykonywaniu czynności zmierzających do zawarcia przez inne osoby umów:
1)nabycia lub zbycia praw do nieruchomości
2)nabycia lub zbycia spółdzielczego własnościowego prawa do lokalu;
3)najmu lub dzierżawy nieruchomości lub ich części;
4)innych niż określone w pkt 1–3, których przedmiotem są prawa do nieruchomości lub ich części."

2. ZA OBEJRZENIE DANEJ NIERUCHOMOŚCI BIURO NIE POBIERA ŻADNYCH OPŁAT, wymagane jednak jest zawarcie umowy pośrednictwa i określenie wynagrodzenia biura w razie dojścia do transakcji.

Lokalizacja nieruchomości

Kalkulatory

Kalkulator kredytowy

Wysokość raty

PLN
%

Kalkulator kosztów

Taksa notarialna
(opłata notarialna)

Wniosek o wpis do WKW

VAT od prowizji
agencji nieruchomości

Vat od taksy notarialnej
(opłaty notarialnej)

Prowizja agencji nieruchomości

Wypisy aktu notarialnego

Razem

Uwaga: mogą wystąpić dodatkowe opłaty za założenie księgi wieczystej oraz ustanowienie hipoteki.

PLN
PLN
PLN
PLN
PLN
%
PLN

Podobne oferty

Mieszkanie na sprzedaż

Katowice, Śródmieście

2 pokoje 44 m2 16 900,00 zł/m2

Mieszkanie na sprzedaż

Katowice, Śródmieście

2 pokoje 44 m2 16 149,99 zł/m2

Mieszkanie na sprzedaż

Katowice, Śródmieście

2 pokoje 44 m2 15 800,00 zł/m2

Mieszkanie na sprzedaż

Katowice, Śródmieście

2 pokoje 45 m2 15 449,99 zł/m2

Specjalista ds nieruchomości

Proszę wprowadzić poprawne imię i nazwisko
Proszę wprowadzić poprawny numer telefonu
Proszę wprowadzić poprawny adres e-mail
Proszę zaznaczyć wymagane zgody
Rozwiąż równanie:
29 7
Niepoprawny wynik