Lokal na wynajem Katowice, Szopienice

488.45 m²
32,38 zł/m2
1 piętro
VTS-LW-7235
Powiadom o spadku ceny

15 816 zł

Lokal na wynajem

Szczegóły oferty

Symbol oferty VTS-LW-7235
Powierzchnia 488,45 m²
Powierzchnia użytkowa [m2] 448,45 m²
Rodzaj budynku budynek wolnostojący
Standard
Opłaty wg liczników CO, prąd, woda
Piętro 1
Liczba pięter w budynku 3
Stan lokalu Do wprowadzenia
Okna PCV
Rok budowy 2000
Rodzaj lokalu jednopoziomowy
Woda ciepła - miejska
Dojazd asfalt
Ogrzewanie miejskie
Usytuowanie dwustronne
Możliwość parkowania tak
Własny parking tak
Wejście od ulicy
Leszek Czura

Leszek Czura

Pośrednik/Zarządca
Nr licencji: 14431/22284

Napisz wiadomość 276 Ofert

Opis nieruchomości

Powierzchnia biurowa znajdującą się w kompleksie budynków biurowo – magazynowo – produkcyjnych zlokalizowanych w Katowicach, w dzielnicy Szopienice.

Budynek biurowy został wybudowany w 2000 roku, a gruntownie zmodernizowany w 2007 roku. Budynek jest 3 kondygnacyjny, ze strefą wejściową oraz holem. Parter został w całości wynajęty i zagospodarowany na showroom, biura oraz część socjalno-sanitarną. Budynek przylega do hali wysokiego składowania i posiada w kondygnacji parterowej dwa bezpośrednie wejścia na hale. Pozostałe 2 piętra budynku dają możliwość niezależnego funkcjonowania i posiadają pełne zaplecze socjalno-sanitarne.

INSTALACJE:
Budynek wyposażony jest w następujące instalację: instalację elektryczną, wodno - kanalizacyjną, centralnego ogrzewania, wentylacji i klimatyzacji, instalację p.pożarową, system ssp, a także w instalację kontroli dostępu, alarmową oraz teletechniczną.

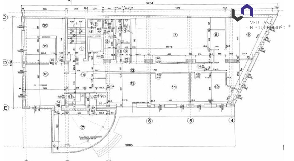
I PIĘTRO:
Powierzchnia użytkowa 488,45 m2, a w tym: powierzchnie administracyjno – biurowe, sala konferencyjna, powierzchnie sanitarno – socjalne, powierzchnie techniczne, komunikacja.

POWIERZCHNIA SOCJALNO - BIUROWA
CZYNSZ 28,00 PLN + S.CH. 7,27 PLN

KAUCJA:
po podpisaniu umowy najmu przed przystąpieniem do prac adaptacyjnych obowiązuje wpłata kaucji w wysokości 3 – miesięcznego czynszu powiększonego o opłatę S.CH. oraz ryczałty za media;
Kaucja może zostać wniesiona w gotówce, gwarancji bankowej lub ubezpieczeniowej.

Nota prawna

OFERUJEMY BEZPŁATNĄ POMOC W UZYSKANIU KREDYTU HIPOTECZNEGO. UMÓW SIĘ Z NASZYM DORADCĄ JUŻ DZIŚ!

POLUB NASZ PROFIL NA FACEBOOK – CODZIENNIE NOWE OFERTY!!

UWAGA:
Prezentowana oferta nieruchomości sporządzona została na podstawie dokumentów oraz oświadczeń uzyskanych od właściciela podczas oględzin nieruchomości, ma charakter informacyjny, nie stanowi oferty handlowej w rozumieniu Art.66 par.1 Kodeksu Cywilnego.

1. USŁUGA POŚREDNICTWA JEST USŁUGĄ ODPŁATNĄ. (Art. 179b. Ustawy o Gospodarce Nieruchomościami "Pośrednictwo w obrocie nieruchomościami polega na odpłatnym wykonywaniu czynności zmierzających do zawarcia przez inne osoby umów:
1)nabycia lub zbycia praw do nieruchomości
2)nabycia lub zbycia spółdzielczego własnościowego prawa do lokalu;
3)najmu lub dzierżawy nieruchomości lub ich części;
4)innych niż określone w pkt 1–3, których przedmiotem są prawa do nieruchomości lub ich części."

2. ZA OBEJRZENIE DANEJ NIERUCHOMOŚCI BIURO NIE POBIERA ŻADNYCH OPŁAT, wymagane jednak jest zawarcie umowy pośrednictwa i określenie wynagrodzenia biura w razie dojścia do transakcji.

Pośrednik/Zarządca

Proszę wprowadzić poprawne imię i nazwisko
Proszę wprowadzić poprawny numer telefonu
Proszę wprowadzić poprawny adres e-mail
Proszę zaznaczyć wymagane zgody
Rozwiąż równanie:
27 1
Niepoprawny wynik